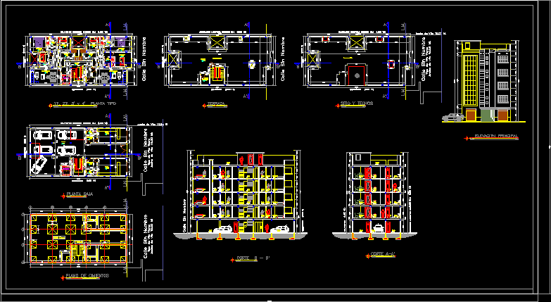
Fully editable dwg, you can change all the drawings in the project together with everything else.
200 m2 apartment with two Level 5 Ajinomoto by BUILDING VERY BETWEEN THE WALLS IS LOCATED

This dwg file is compatible with all versions of Autocad program.