Login
Register
Search
Lifetime membership is only
10$
instead of
99$
left until the end of the campaign.
(one time fee, no hidden charges.)
All Dwg
>
Projects
> Condominium - technical details
VIP
Fully editable pdf, you can change all the drawings in the project together with everything else.
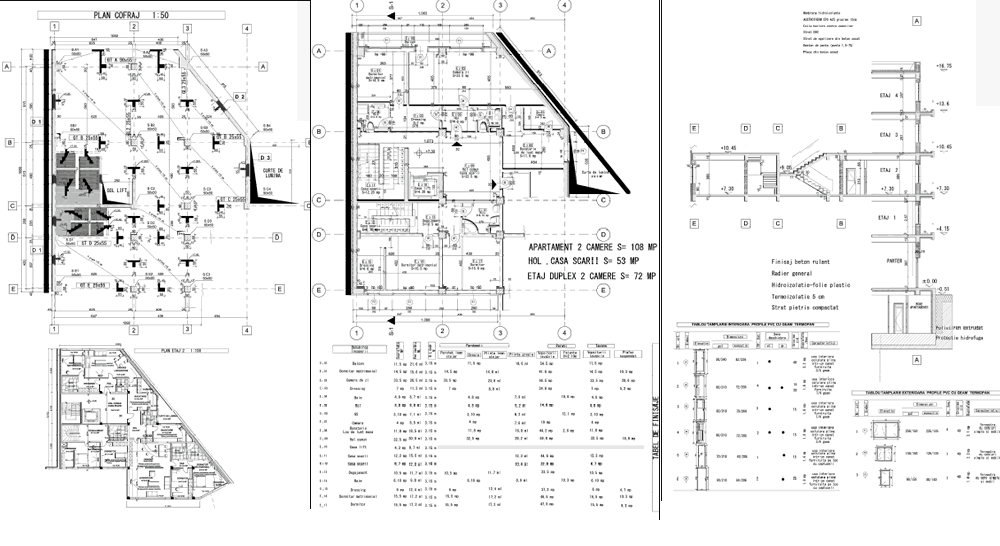
TECHNICAL DETAILS CONDOMINIUM
This pdf file is compatible with all versions of program.