Lifetime membership is only 10$ instead of 99$
left until the end of the campaign.
(one time fee, no hidden charges.)

All Dwg > Projects > Semi-detached house 3 levels

Fully editable pdf, you can change all the drawings in the project together with everything else.

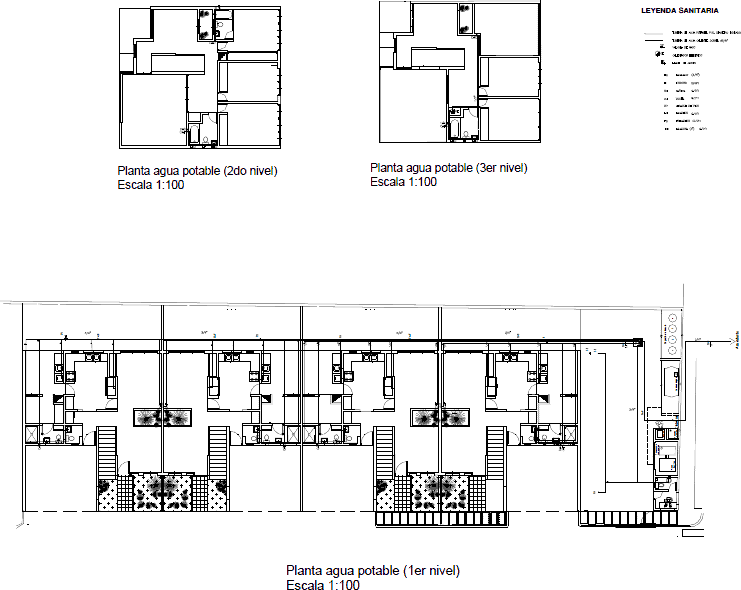
Semi-detached houses with 4 apartments each proposed member of a family of 5 for Level 3 3 levels Plant Health plant rain water elevation sections structural and architectural plans furnished includes plant A detailed view of a housing attachment


This pdf file is compatible with all versions of program.