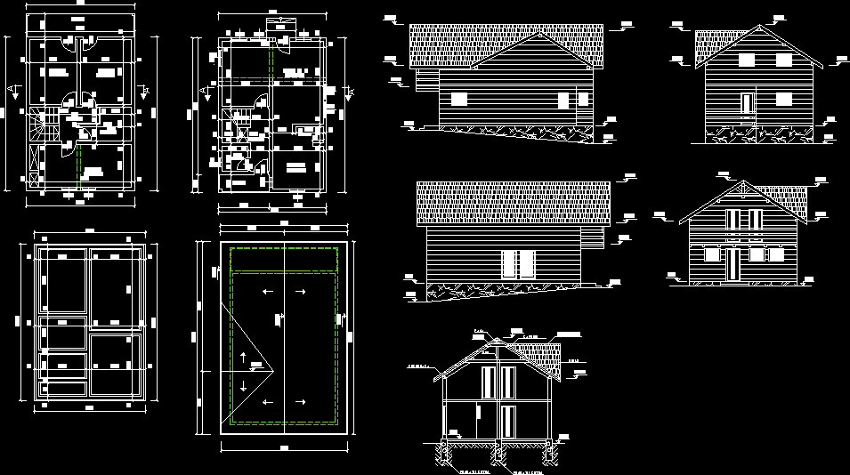
Fully editable dwg, you can change all the drawings in the project together with everything else.
2 levels - plants - sections - facades etc - structural plans and architectural plans for housing

This dwg file is compatible with all versions of Autocad program.