All Dwg
>
Projects
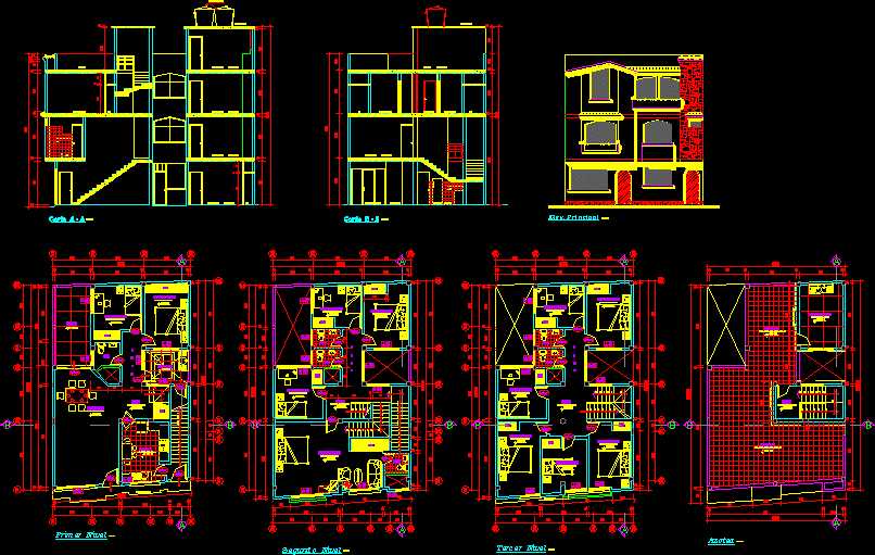
> A family rental housing 3 times the number
Fully editable dwg, you can change all the drawings in the project together with everything else.
PLANS SECTIONS FACADES AND BEDROOM AUNTIES RENTAL IN THE SECOND AND THIRD PHASES

This dwg file is compatible with all versions of Autocad program.