All Dwg
>
Projects
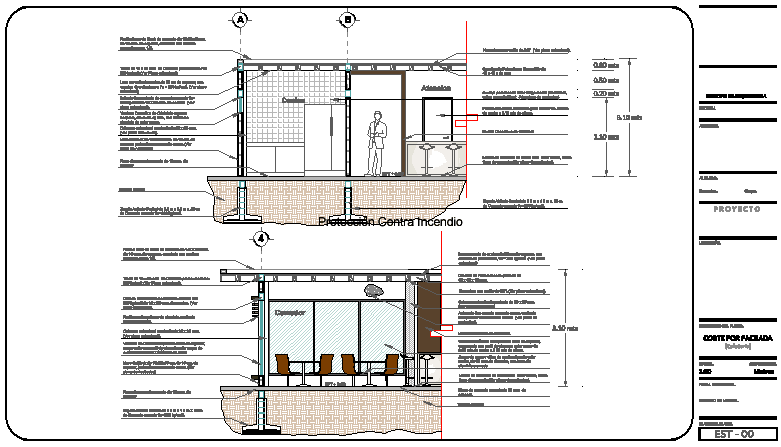
> Cafe finishes and furniture parts
Fully editable dwg, you can change all the drawings in the project together with everything else.
Walls windows flooring furniture floor foundation specifies that the type is complete

This dwg file is compatible with all versions of Autocad program.