Lifetime membership is only 10$ instead of 99$
left until the end of the campaign.
(one time fee, no hidden charges.)
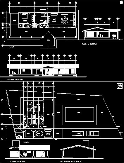
All Dwg
>
Projects
> Family housing
Fully editable dwg, you can change all the drawings in the project together with everything else.
Floor plans and facades

This dwg file is compatible with all versions of Autocad program.