Fully editable dwg, you can change all the drawings in the project together with everything else.
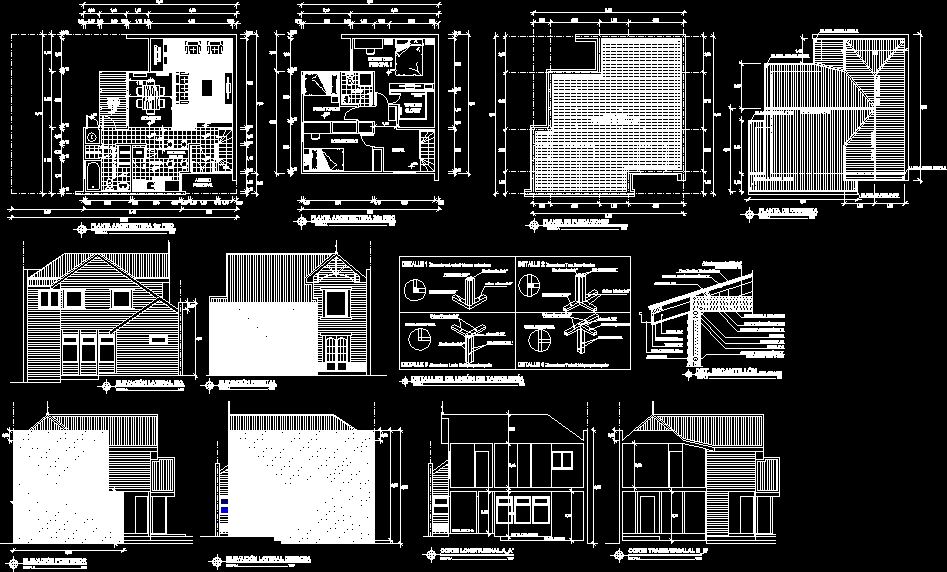
The house is two-storey wooden structure, firewall, sections, details, elevations and sections.

This dwg file is compatible with all versions of Autocad program.