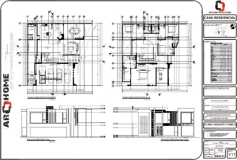
Ground floor: 4 car garage, living room, dining room, kitchen, breakfast nook, patio, lounge, bathroom and a half bath service area with a double glass dome - height. First floor: 3 en-suite bedrooms, master bedroom with walk - in closet and Jacuzzi, Gy
