Login
Register
Search
Lifetime membership is only
10$
instead of
99$
left until the end of the campaign.
(one time fee, no hidden charges.)
All Dwg
>
Projects
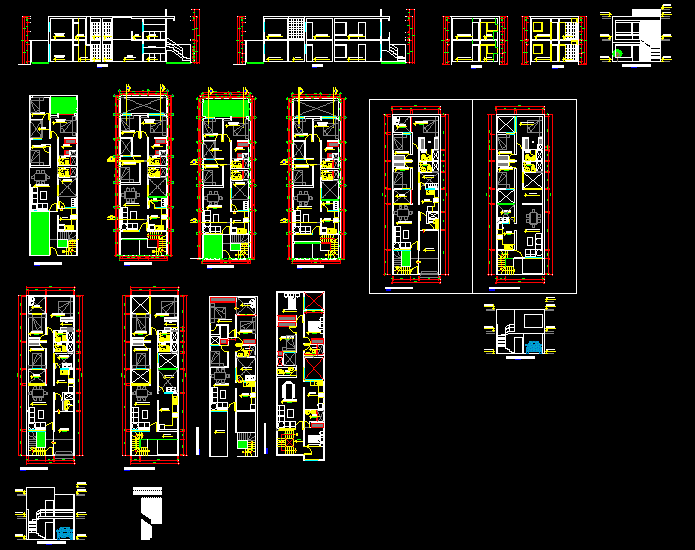
> House 6 x 20
VIP
Fully editable dwg, you can change all the drawings in the project together with everything else.
The Department of housing two levels - the ground type 6x20m
This dwg file is compatible with all versions of Autocad program.