All Dwg
>
Projects
> Classes, Cochabamba, peru
Fully editable dwg, you can change all the drawings in the project together with everything else.
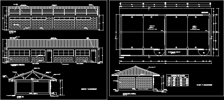
Architectural plan - distribution - elevations - two classroom sections

This dwg file is compatible with all versions of Autocad program.