Fully editable dwg, you can change all the drawings in the project together with everything else.
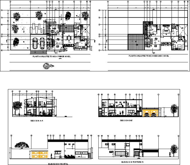
Duplex 3 bedrooms - bedroom service - plants - sections - facades - buildings - facilities

This dwg file is compatible with all versions of Autocad program.