All Dwg
>
Projects
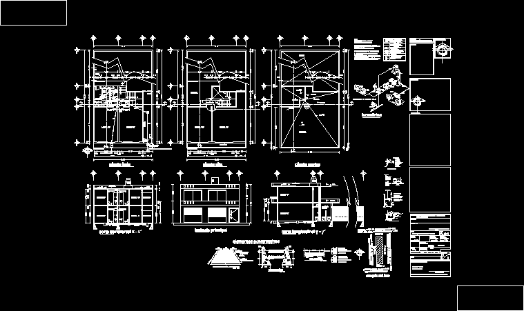
> The house is two levels
Fully editable dwg, you can change all the drawings in the project together with everything else.
Floor plans (including: ground floor and first floor in front of the cut and also construction details and hydraulic properties

This dwg file is compatible with all versions of Autocad program.