Login
Register
Search
Lifetime membership is only
10$
instead of
99$
left until the end of the campaign.
(one time fee, no hidden charges.)
All Dwg
>
Projects
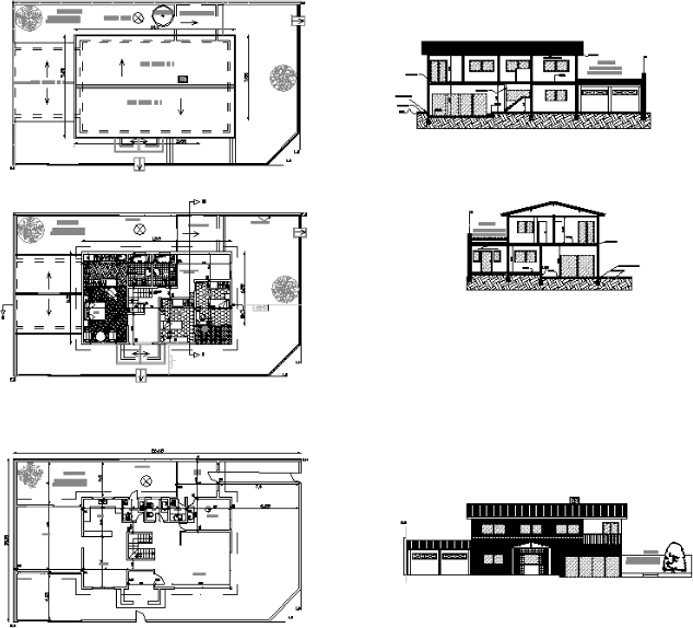
> Family housing a dentist's office with a
VIP
Fully editable dwg, you can change all the drawings in the project together with everything else.
General plans, Heights
This dwg file is compatible with all versions of Autocad program.