All Dwg
>
Projects
> Country house, 3 bedrooms
Fully editable dwg, you can change all the drawings in the project together with everything else.
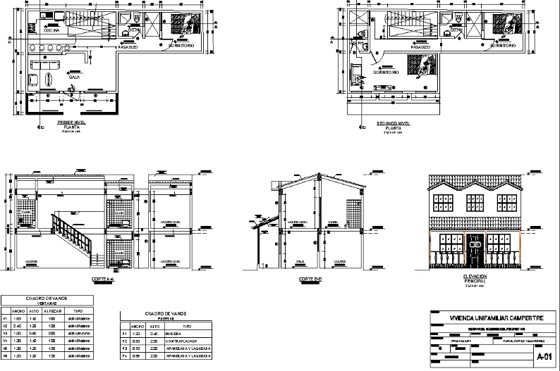
Rural Housing PLAN - 3 Bedroom - Floor Plan, elevation, sections A1 and format page.

This dwg file is compatible with all versions of Autocad program.