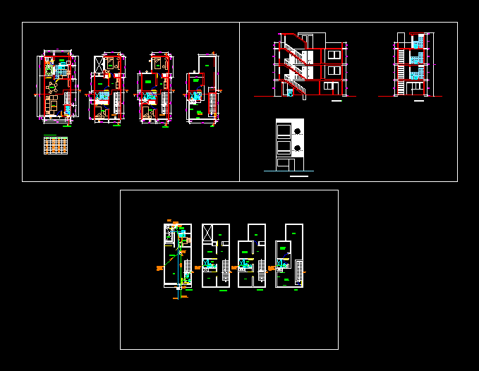
Fully editable dwg, you can change all the drawings in the project together with everything else.
X 4,70 10,45 according to them plants and health - ground floor - two levels - Terrace accessible from the property

This dwg file is compatible with all versions of Autocad program.