Lifetime membership is only 10$ instead of 99$
left until the end of the campaign.
(one time fee, no hidden charges.)

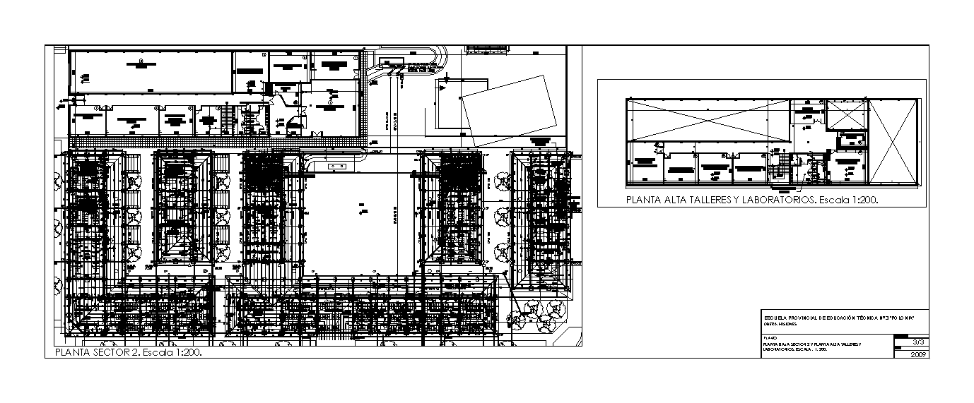
All Dwg > Projects > Epet school survey

Fully editable dwg, you can change all the drawings in the project together with everything else.

This development, in plants, cuttings, and number, location sketches, the roof of the plant balance and plant surface structure, sanitary, storm, electricity, water, gas, others include. Also contains the details of the construction


This dwg file is compatible with all versions of Autocad program.