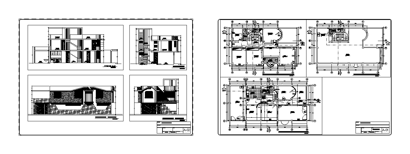
DETACHED HOUSE CORNER: 03 LEVELS DEVELOPED IN THE FIRST LEVEL (LIVING ROOM, STUDY, GARAGE, GARDEN, KITCHEN, BATHROOM) THERE'S THE SECOND LEVEL: (BE, 03 S BEDROOM, 2 BATHROOMS, AND SPACE TO STITCH.) LEVEL 3: (ROOF, LAUNDRY AND BATHROOM) ATTACHED TO THE PLA
