Fully editable dwg, you can change all the drawings in the project together with everything else.
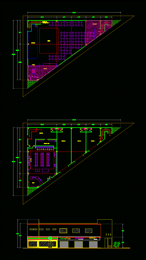
Comercial OXXO exterior architectural plan type. Bounded scales, furniture, human-scale commercial real

This dwg file is compatible with all versions of Autocad program.