Fully editable dwg, you can change all the drawings in the project together with everything else.
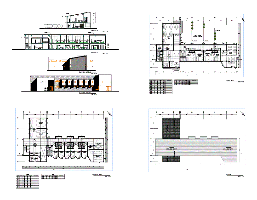
Asylum, nursing homes, home. Nursing home in andahuaylas old architecture is detailed. Project

This dwg file is compatible with all versions of Autocad program.