All Dwg
>
Projects
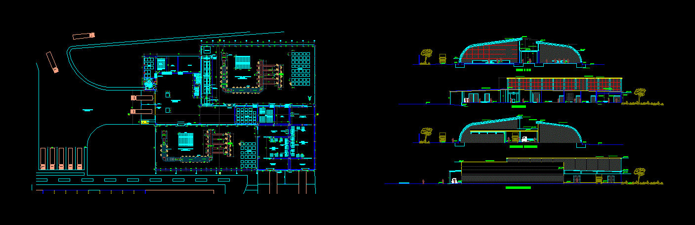
> Planta procesadora de mango
Fully editable dwg, you can change all the drawings in the project together with everything else.
Planta procesadora de elevacion y cortes planos plantas de mango (todas amobladas).

This dwg file is compatible with all versions of Autocad program.