Login
Register
Search
Lifetime membership is only
10$
instead of
99$
left until the end of the campaign.
(one time fee, no hidden charges.)
All Dwg
>
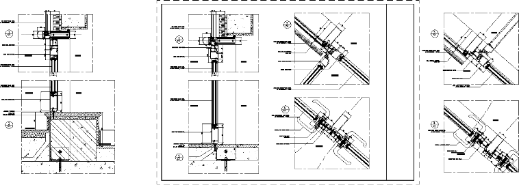
Doors and Windows
> Curtain wall details
VIP
Fully editable dwg, you can change all the drawings in the project together with everything else.
Details - properties - sizing
This dwg file is compatible with all versions of Autocad program.