All Dwg
>
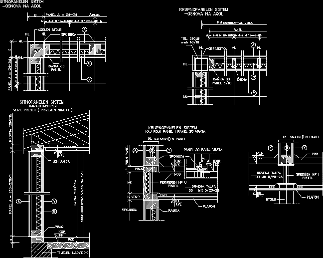
Construction Details
> Wooden construction elements
Fully editable dwg, you can change all the drawings in the project together with everything else.
details of Wooden structural elements

This dwg file is compatible with all versions of Autocad program.