All Dwg
>
Construction Details
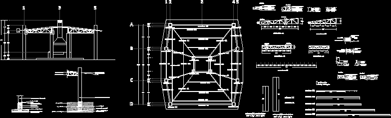
> The project with steel construction kiosco
Fully editable dwg, you can change all the drawings in the project together with everything else.
KIOSCO STRUCTURE STEEL COLUMNS IN THE BASE PROFILE AND

This dwg file is compatible with all versions of Autocad program.